 
 


  

|

Projekt domu przysłupowego
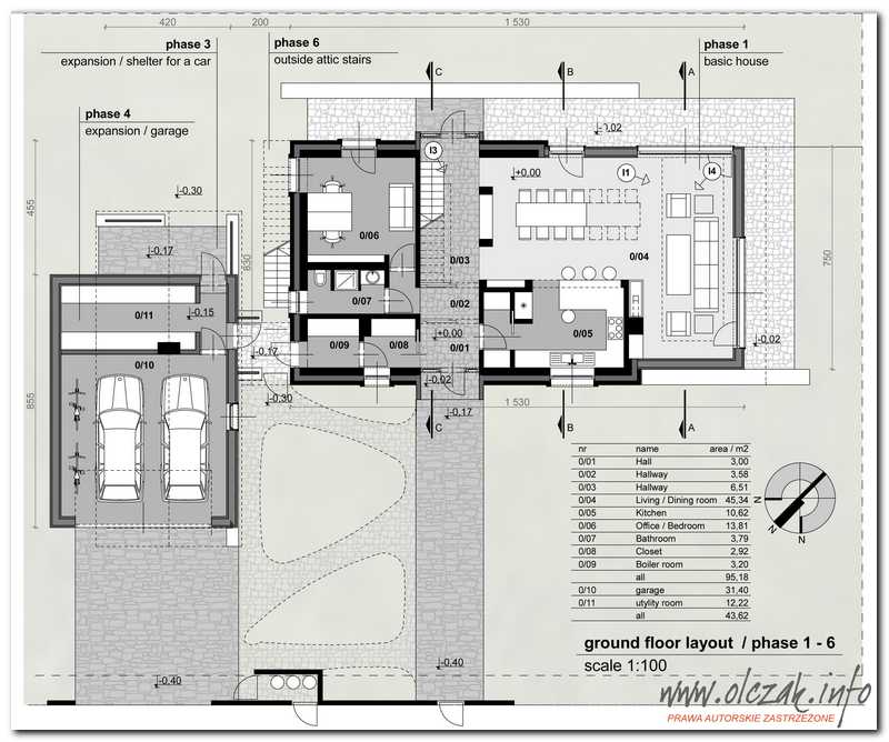
Projekt
konkursowy domu modelowego z garażem lub wiatą. Zaproponowano dom dla
współczesnej rodziny z uwzględnieniem zmieniającej się
specyfiki życia i pracy. Dlatego dom zaprojektowano tak aby możliwe
były zmiany jego układu. Przewidziano otwartą strefę dzienną z
pomieszczeniami uzupełniającymi, część gospodarczą oraz niezależne
pokój do pracy. Zaprojektowano możliwość przekształcenia
biura w sypialnię gościnną. Na piętrze zlokalizowano pomieszczenia
spełniające podstawowy program domu. Przewidziano możliwość
powiększenia sypialni dziecinnych o antresole. Przewidziano możliwość
likwidacji pustki nad salonem i utworzenia dodatkowej sypialni
dziecinnej. Ściany zewnętrzne murowane warstwowe, pustak ceramiczny,
okładzina kamienna, ocieplenie wełna mineralna / Ściany zewnętrzne
szkieletowe, kratownica przestrzenna drewniana, izolacje systemowe /
Stropy drewniane / Ściany wewnętrzne szkieletowe / Schody drewniane
lite samonośne / Kominy systemowe ceramiczne / Więźba dachowa
drewniana, pokrycie dachówką ceramiczną lub łupkiem
kamiennym, ocieplenie dachu wełną mineralną. |
|
|